CTA Training & Control Center Operations Facility

Chicago Transit Authority’s Headquarters

Project Roles

Planning: Collaborated with landscape and planning designers on the Planned Development set.

Architecture: Created schematic design presentation decks in InDesign, supported exterior 3D modeling in Revit, drafted and documented precast panel types, annotated exterior elevations, coordinated DD & CD redlines with interiors and landscape teams, developed dock leveler detail drawings under PA supervision.

Project Type

Public Infrastructure

The Chicago Transit Authority teamed up with LJC & Clayco to create and build their new headquarters, positioned on the west side of Chicago. The new HQ includes a training center, control center, and a high bay facility. The training center houses offices, classrooms, and conference rooms for staff in training, while the high bay extends hands-on learning outside of the classroom. The control center is the nerve of monitoring, managing, and directing the entirety of Chicago’s transit system.

Project Location

Chicago, Illinois

Project Year

LJC, 2023 - Present

Project Status

Slated for construction: 2026

Level one

Levels two & three

Roof

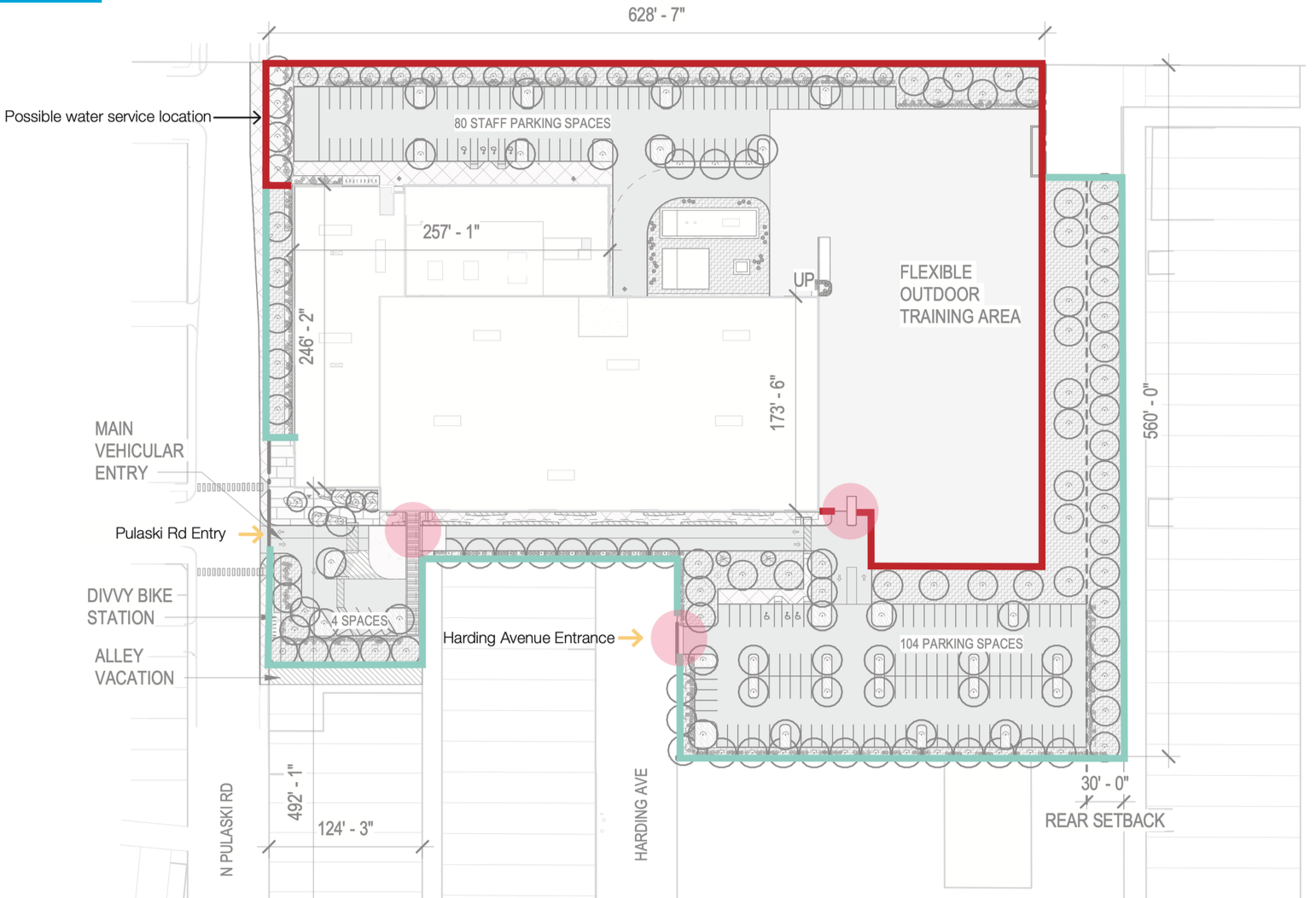
Site Plan

The Site Plan was shaped by creating a prominent street presence from N. Pulaski Road, community-oriented street edges, existing rail line locations, and a flexible outdoor training area.

Level One - Overall Floor Plan

Training Center - Circulation Plans and Floor Plans

Conducting circulation studies was essential to understanding the various users in order to accommodate their needs and typical daily flow through the space. The need for designated security points helped shape the sequence of the interior program.

The exterior of the building is wrapped with earth-toned precast concrete panels, creating a dynamic balance in design, while echoing the CTA's historic ties with its site.

The facade features multiple precast panel typologies, a selection of which are showcased here. Beginning with three individual panel modules, each sized to a single floor height and defined by varying reveal widths, the panels are then stacked vertically to form full-height panel assemblies. Each full-height panel type consists of a distinct vertical arrangement of the three base modules, shaping the range of panel typologies expressed across the facade.

Legend

Precast panel base modules

Precast panel reveal types

Exterior Precast Panel Types - Training Facility North and West walls

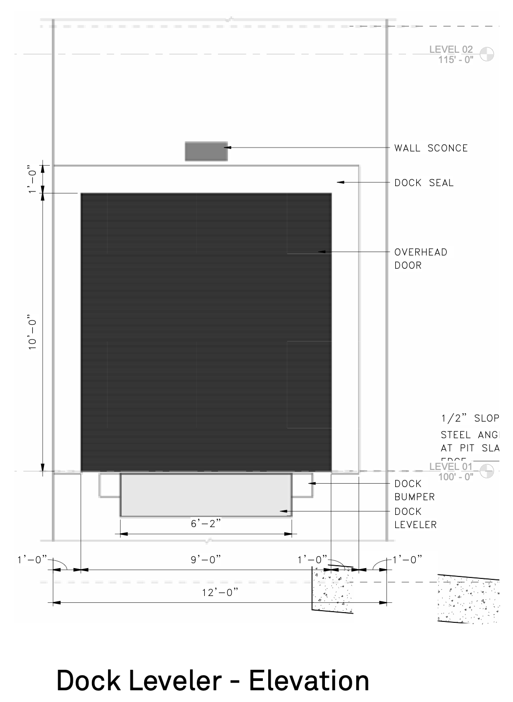
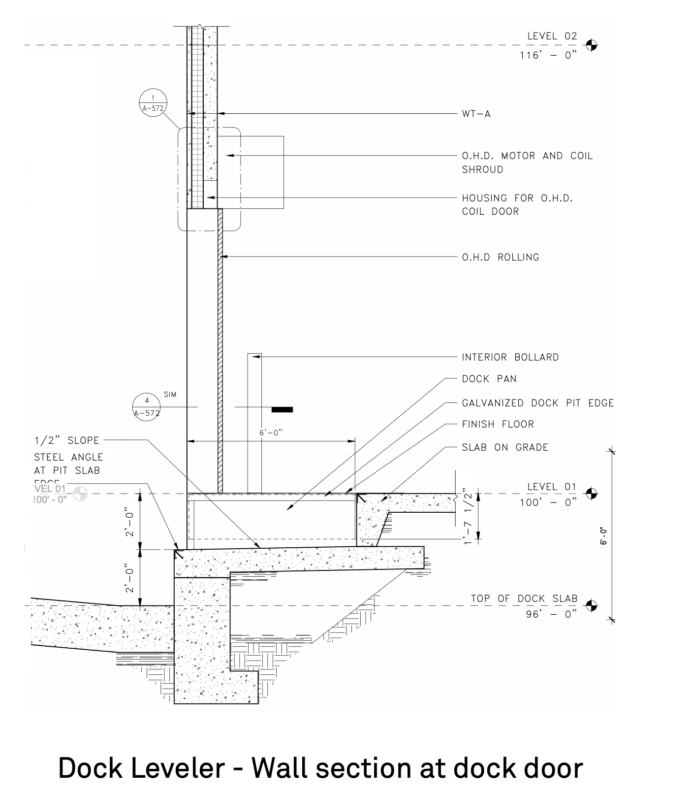
Wall section at dock door

Enlarged dock plan

Dock Leveler detail drawings

Front elevation

The dock leveler is located in the Loading Dock within the High Bay. These drawings demonstrate coordination between structural and mechanical engineers, to ensure safe and durable operations.

Defined by a curtain wall façade, the southwest corner of the facility serves as the primary entrance for the training center staff and students. A public-facing street edge is created, establishing an inviting street presence.

Project Disclaimer


This project was initiated during my employment at Lamar Johnson Collaborative and remains in active development.


All trademarks, designs, images, and diagrams are the property of © 2026 LJC and are displayed here with permission for portfolio purposes only.